Продается 3-х комн. квартира, 200.6 кв.м., 5/5 эт
| Стоимость | 26 078 000 |
|---|---|
| Ремонт | Без отделки |
| Доля в квартире | Нет |
| Онлайн показ | могу провести |
| Статус Недвижимости Авито | Квартира |
| Двор | Закрытая территория |
| Консьерж | Есть |
| Тип парковки | Подземная |
| Способ связи avito | По телефону и в сообщениях |
| Узаконена ли планировка | Есть |
| Есть ли право собственности | Есть |
| Тип дома cian | Монолитный |
| Номер телефона для подключения функционала чатов. выгрузка | 89261182707 |
| Комнат в квартире | 3 |
| Площадь, кв.м. | 200.6 |
| Площадь кухни, кв.м. | 36.7 |
| Этаж | 5 |
| Этажность | 5 |
| Материал стен | кирпично-монолитный |
| Населенный пункт | деревня Семенково |
|---|---|
| Район города | коттеджный посёлок Азарово Северное |
| Улица | улица Сиреневая |
| Номер дома | 6 |
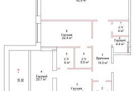
Продам роскошную 3-комнатную квартиру в престижном поселке Азарово, площадью 200,6 м². Идеально подходит для владельцев крупных компаний, топ-менеджеров и высокопоставленных госслужащих. Квартира включает просторную кухню-гостиную (56,6 м²), две спальни (32,2 м² и 35,2 м²), три гардеробные комнаты и три санузла. Разноуровневые потолки до 4,5 м позволяют создать дополнительную комнату с мансардными окнами. Квартира подготовлена к чистовой отделке: выполнена разводка отопления, воды, канализации и электричества.
Азарово – это идеальное место для загородной жизни в окружении 40 га Ново-Дарьинского леса. Удобный доступ: всего 24 минуты до Москва-Сити по Рублевскому и Минскому шоссе. На территории поселка есть детские площадки, фонтаны, прогулочные зоны на берегу озера, освещенная лесная дорожка. Функционируют три детских сада, включая известный трёхъязычный «Кот в сапогах», и частная школа «Эра».
Поселок круглосуточно охраняется, улицы оформлены в современном стиле. Заинтересовались? Пишите или звоните в любое время! Оставьте номер телефона для обратной связи, и мы перезвоним вам в течение дня. Мы – прямые представители собственника, обеспечиваем полное юридическое сопровождение и организуем показ в удобное для вас время.
#элитнаяквартира #Азарово #Рублевка #недвижимостьМосква #VIPжилье #роскошнаяжизнь #загороднаяжизнь #природа #комфорт #безопасность #МоскваСити #элитнаянедвижимость #бизнескласс #топменеджеры #госслужащие #крупныекомпании #семейныйотдых #частнаяшкола #детскиесады #покупкаквартиры #юридическоесопровождение































